Anasayfa
Hakkımızda
Projeler
Devam Eden Projeler
Biten Projeler
Tesisler
Kurumsal
İletişim
English
TESİS 15
Home
Tesisler
Tesis "
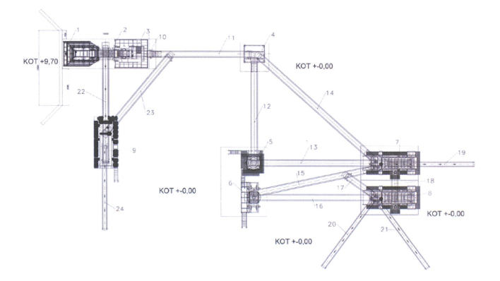
Kırma Eleme Tesisin Ana Makinaları
Primer Kırıcı
SAES C110 Çeneli Kırıcı - 1 adet
Sekonder Kırıcı
METSO HP 300 Konik Kırıcı - 1 adet
Tersiyer Kırıcı
Dikmilli Kırıcı VSİ- 1000 - 1 adet
Elek Grubu
SAES 2200*6000 - 2 adet
Tesisin kapasitesi 350 ton/sa‘dır
© DKT İnşaat | 2020